| ほぼ日 |
「新選組!」展の目玉のひとつが
池田屋事件の再現模型ですよね。
|
 |
| 市川 |
あれは検証再現模型と呼んでるんです。
ただの模型ではないです。
模型って、いろんな考え方があって。
たとえば、元治元年6月5日、
午後10時20分でフリーズ!
って固めるという模型も、
もちろんあるわけです。
|
| ほぼ日 |
なるほど。でもそうすると
時系列での説明が
しにくくなっちゃいますね。
|
| 市川 |
そうですよね。
でもこれは、時間の経過で検証ができる
再現模型にしました。
|
| ほぼ日 |
あ、だから、たとえば近藤勇が
何人も出てくるんですね。
|
| 市川 |
そうなんです。そして、たとえば、
諸説あって真相がわからないことも
表現することができるんです。
|
| ほぼ日 |
たとえばどんなことですか。
|
| 市川 |
たとえば、近藤勇たちが
池田屋に突入するんですけど、
そのときの突入メンバーは誰か?
ということについては、
いくつか説がありますね。
さらに有名なのは、
沖田総司が池田屋で喀血した、
彼は肺結核だった、という説。
昔は当然のように
そう言われてたんだけど、
今ではかなり疑問を呈されるように
なっているんですね。
なぜならこの元治元年って、
まだ1864年なんですよ。
明治維新まで、もう3年ぐらいある。
なのに池田屋で喀血してたら、
余命あと3年あるかどうかって
いうことが疑問だっていうんですよね。
|

|
| ほぼ日 |
確かに沖田総司が、
このときに血を流すような
病状だったら、
連れていかないんじゃないかって
いう気も、ちょっとしますよね(笑)。
|
| 市川 |
実際、この時期に沖田の病状が
悪いっていう証拠は、
一切出てこないんですよ。
じゃ、模型でどうするのかっていう話に
なりますよね。
血を吐かせるのか吐かせないのか。
普通だったら、もう吐かせるって
決めて作るわけですけど、
今回は、「沖田を倒した病は何か?」
という問いかけにしています。
|
| ほぼ日 |
ああ、それが可能な模型なんですね。
|
| 市川 |
ええ、検証をしながら、
事件の経過を見ることができる、
っていうコンセプトなんですね。
|
| ほぼ日 |
新選組については、脚色された物語も
後世たくさん出ていますから、
それだけになにがほんとうなのかを
見つけるのはたいへんなんでしょうね。
|
| 市川 |
昭和初期に新選組のことを
文章にした子母沢寛が、
小説家でありながら
小説家の域を超えて、
かなり詳しく検証を行なったんですね。
しかしそのおかげで、
どこまでがフィクションなのか
境界が曖昧になっちゃったんですよ。
子母沢寛は現地調査もして、
当時の有名な歴史家から
「大変いい歴史書だ」
っていうふうなお墨付きまで
得ちゃったものですから(笑)。
長らく子母沢新選組が、
すべて真実みたいな感じで
受け止められてましたね。
最近はいろんな人が検証するように
なっているんですけれど。
|
| ほぼ日 |
「階段落ち」は物語ですか?
僕らのイメージの階段落ちは
「蒲田行進曲」なんです。
大階段だと思ってたから、
この模型の階段の狭さと急勾配に
びっくりしちゃいました。
|
| 市川 |
すごい狭いんです。
|

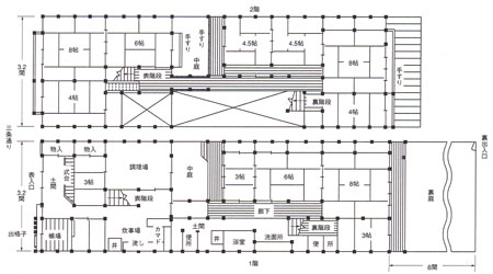
池田屋の平面図 資料提供:NHK出版『NHK歴史への招待16』
|
| ほぼ日 |
当然、この当時の建物って
小さいですよね。
江戸東京たてもの園にある、
高橋是清の、暗殺の現場となった家。
あの家も小っちゃかった。
っていうことは、池田屋なんて
もっと小さかったのかも?
|
| 市川 |
広くないです。で、しかもですね、
この間取りについては、
いろんな研究者が集まって、
検証したことがありましてね。
「歴史への招待」という
NHKの歴史番組があって、
子母沢寛が昭和初期に行なった
京都での現場検証に
立ち会った人の証言とか、
京都の町屋の研究家とか、
明治大正昭和の図面とか、
いろいろ集めてきて、
ようやくできた池田屋の1階と
2階の平面図っていうのがあるんです。
それを土台にしてるんですよ。
しかしですね、たとえばね、
その番組の中で明らかになったのは、
2階って、こうやって刀振り上げると、
もう刀がすぐ天井に‥‥。
|
| ほぼ日 |
ついちゃうぐらいの天井高だったと。
|
| 市川 |
低いんですよ。
自由にはチャンチャンバラバラは‥‥。
|
| ほぼ日 |
ダメですよね。
|
| 市川 |
だから今回の模型は、
検証がほんとにできることを
目標に作ろうということになって。
|
| ほぼ日 |
おお! リアリティを重視して!
そうすると、どんなことが
わかりました?
|
| 市川 |
たとえば、
2階に上がっていきますよね。
そして「御用改めだ」って言ったとき、
一瞬の緊張があって。
その緊張を破って戦闘が始まる。
そしたらね、当然、
火なんか消しちゃうはずなんですよ。
もともとすっごい薄暗い
明かりしかなかった昔なのに、
火を消したらね、
ほんとに闇になっちゃうんですね。
確かに『浪士文久報国記事』を見ると、
もう2階では戦えなくて、
すぐ1階に移るんです。
つまりそれは、おそらく
暗いからなんです。
で、降りてきたら、
八間の明かりっていうのがあって。
|
| ほぼ日 |
ハッケンの明かり‥‥?
|
| 市川 |
八間。一説によれば八間四方を
照らすことができる、
すごく大きな明かりです。
|
| ほぼ日 |
あ、すごい広い範囲ですね。
|
| 市川 |
すっごい広いですよ。
じっさいのところはわかりませんが
『浪士文久報国記事』に
「八間の明かりがあって助かった」って
いうふうに、出てくるんです。
で、階段なんですけど、
想像するのは表階段ですよね。
|
| ほぼ日 |
そうですそうです。表階段。
|
| 市川 |
ところが表階段のほうじゃなくって、
奥に、せまーい階段があるんです。
|
| ほぼ日 |
(模型をさして)ここですね。
|


池田屋の平面図 資料提供:NHK出版『NHK歴史への招待16』
|
| 市川 |
そうそうそうそう。
資料を読んでくと、池田屋惣兵衛が
奥の階段から上がってって、
その後をついてったっていうふうに
書いてあるんです。
表階段じゃなくて奥階段なんです。
だから2階での斬り合いは、
裏階段付近の広い部屋だったろうと
検証再現模型では示しています。
|
| ほぼ日 |
そこから、また下に降りるんですね。
|
| 市川 |
ええ、すぐ1階に降りてくるんですよ。
たぶんおそらく明かりを吹き消して、
中庭に飛び降りて、
下で戦うやつらは下で戦って、
という状況になったはずなんですよね。
それで、そこまでの間に、
いろんな検証が入ってくるんですよ。
|